Project Description
Ilica Zagreb
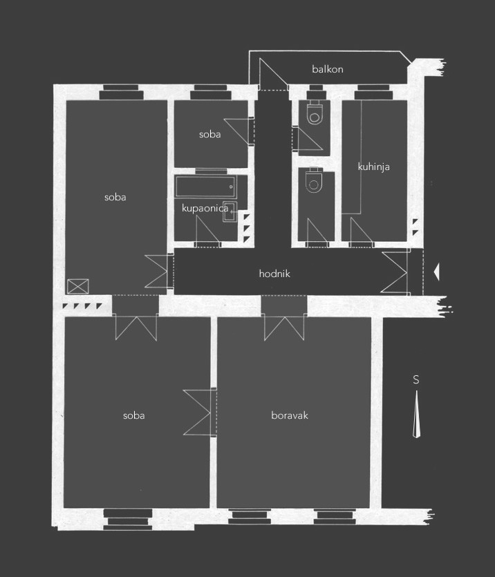
Zapušten stan krcat kramom osvježen minimalnim ulaganjem.
Zastarjela, predimenzionirana smočnica preuređena u dodatni wc, zidovi i i drvenarija zakrpani i oličeni.
Stari namještaj, predviđen za otpad, preuređen i prenamijenjen, pločice bojanjem vraćene u izvorno stanje.



































